小規模な福祉・介護施設から新調理システムを導入した急性期病院、セントラルキッチンまで、大小さまざまな規模、調理提供方式の電化厨房採用事例をご紹介。
谷孝之・大木斉などの達人シェフが、真空調理やスチームコンベクションオーブンの基本的な工程や活用ポイントを、映像を交えて分かり易くご紹介。
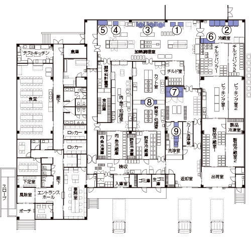
クックチル・ニュークックチルの基本概念と導入メリットを整理し、正しい手順と成果を導くために不可欠なポイントを簡潔に分かり易くご紹介。
各分野の専門家へのインタビューやコラムを通じて電化厨房の特性や特徴、上手に導入・活用するための情報やノウハウを提言。
時代の要請に応える食事サービス理念やコンセプトの実現に貢献する最適な給食施設計画のノウハウをまとめた本書をダイジェスト紹介。
他熱源の機器では得られない高いパフォーマンスやメリットを享受できる電化厨房機器の特徴と使用上のコツを、実演映像でご紹介。
衛生管理・アレルギー対策など、学校給食が直面する課題の解決に貢献する単独校から給食センター、大学の学生食堂まで多種多様な電化厨房モデル事例をご紹介。
これから給食施設の新設や既存施設の改修、運営システムの改善などを検討する上で不可欠な、学校給食衛生管理基準に適した施設計画・運営ノウハウを解説。
『学校給食施設計画の手引き』の追補版冊子として、換気空調対策、食物アレルギー対応、災害時の炊き出し提供体制のあり方などを特集。
理論派シェフとして著名な大木斉氏がスチームコンベクションオーブンの各モードの特徴や基本的な活用ノウハウを、映像を交えて伝授。
食物アレルギーのメカニズムから対処法、給食施設における対応策を専門医が分かり易く解説。
過去の教訓を活かし、災害時に給食施設や事業所などで備えておくべきもの等、食糧備蓄のあるべき姿を専門家が提言。
放射熱や排ガスが少なく厨房内をクリーンに保ちやすい電化厨房の特性を活かしたデザイン性・機能性に優れた事例をご紹介。
谷孝之・大木斉などの達人シェフが、真空調理やスチームコンベクションオーブンの基本的な工程や活用ポイントを、映像を交えて分かり易くご紹介。
他熱源の機器では得られない高いパフォーマンスやメリットを享受できる電化厨房機器の特徴と使用上のコツを、実演映像でご紹介。
クックチル・ニュークックチルの基本概念と導入メリットを整理し、正しい手順と成果を導くために不可欠なポイントを簡潔に分かり易くご紹介。
食物アレルギーのメカニズムから対処法、給食施設における対応策を専門医が分かり易く解説。
過去の教訓を活かし、災害時に給食施設や事業所などで備えておくべきもの等、食糧備蓄のあるべき姿を専門家が提言。
ファミレス等のチェーン店から高級店・ホテルレストラン、スーパー等の中食施設まで、電化厨房の特性を活かした幅広いジャンルの事例をご紹介。
谷孝之・大木斉などの達人シェフが、真空調理やスチームコンベクションオーブンの基本的な工程や活用ポイントを、映像を使って分かり易くご紹介。
他熱源の機器では得られない高いパフォーマンスやメリットを享受できる電化厨房機器の特徴と使用上のコツを、実現映像でご紹介。

|
![]() |
![]() |
|
|
![]() |
![]() |
||||
| スチームコンベクションオーブン | ブラストチラー・フリーザー |
![]() |
|
|
|
|
|
|
|